Casa para rehabilitar en Calle Mendizabal

Casa para rehabilitar en Calle Mendizabal

Calle Mendizábal, Almansa, Albacete, Castilla-La Mancha, 02640, España

Venta

49,000€

  • DCIM100SPORT
  • Alzado_Mendizabal web
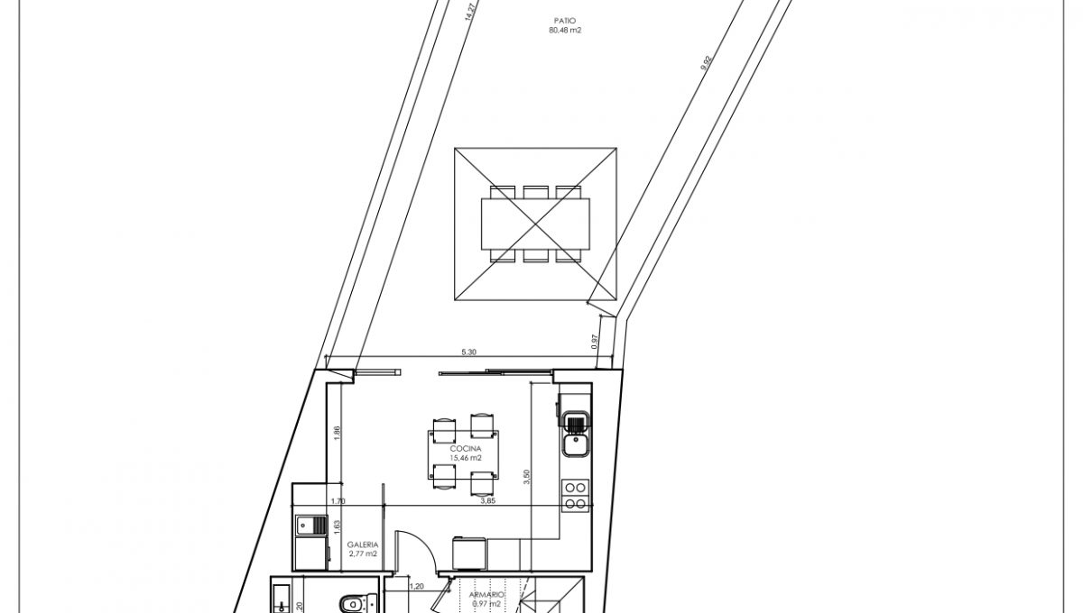
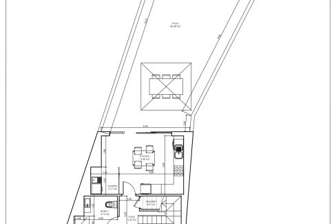
  • Mendizabal 42_Planta_Baja_ESTUDIO 2_page-0001
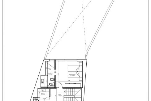
  • Mendizabal 42_Planta_Primera_ESTUDIO 2_page-0001

ID de la propiedad :

 Ninguno

Compartir

Imprimir

Descripción



Casa muy bien situada para rehabilitar o derribar. Con aprox 70 metros cuadrados por planta y posibilidad de varias alturas alturas, tiene además un gran patio de 80 metros cuadrados donde puede instalarse una piscina. Se incluyen en las fotos planos de posible distribución. En el precio están incluidas dos plazas de garaje situadas en el edificio de al lado.

Pídenos información sobre diferentes opciones de rehabilitación , precios de la misma y financiación a tú medida.

Detalles adicionales

  • FACHADA: 8.50 metros lineales
  • FONDO: 26 metros
  • PATIO: 65 metros cuadrados
  • GARAJES: Dos garajes aparte por valor de 15.000 euros

Inmueble en el mapa

Inmuebles similares

Deja una respuesta

Tu dirección de correo electrónico no será publicada. Los campos obligatorios están marcados con *